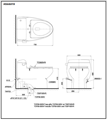
Nắp đóng êm (T8): TC600VS
Công nghệ: Men sứ chống dính CeFiONtect
Hệ thống xả: Xả xoáy Tornado
Lượng nước: 6L
Thiết kế: Thân dài, thân kín
Tâm xả: 305mm
Lưu ý: Sản phẩm đã bao gồm bích nối sàn, van dừng
Giao hàng ngay trong ngày nội TPHCM
Cam kết 100% sản phẩm chính hãng
Dịch vụ thi công chuyên nghiệp đúng kỹ thuật
Chính sách giá minh bạch, cam kết rõ ràng
MS688T8
Giá niêm yết: 16.560.000 ₫ (đã có VAT)
Gọi ngay: 0899441425 - 0938704764
Bồn Cầu Một Khối Kết Hợp Nắp Đóng Êm
Hết hàng







