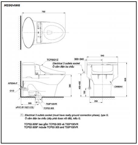
Nắp rửa điện tử (W6): TCF6531Z (220V)
Công nghệ: men sứ chống dính CeFiONtect
Hệ thống xả: Xả Siphon mạnh mẽ
Lượng nước: 6L
Thiết kế: Thân dài, thân kín
Tâm xả: 305mm
Lưu ý: Sản phẩm đã bao gồm bích nối sàn, van dừng
Giao hàng ngay trong ngày nội TPHCM
Cam kết 100% sản phẩm chính hãng
Dịch vụ thi công chuyên nghiệp đúng kỹ thuật
Chính sách giá minh bạch, cam kết rõ ràng
MS904W6
Giá niêm yết: 34.470.000 ₫ (đã có VAT)
Gọi ngay: 0899441425 - 0938704764
Bồn Cầu Một Khối Kết Hợp Nắp Rửa Washlet





